Článek "Mohyla míru dostala dvě nové vyhlídkové věže"

Článek "Pohled na bitevní pole pod mohylou Míru umožní vyhlídkové plošiny"

Mohyla míru - rekonstrukce návštěvnické infrastruktury a revitalizace areálu muzea bitvy u Slavkova

Prace, Slavkov u Brna

Mohyla míru, první mírový památník v Evropě. Historicky ojedinělý památník, který je dedikovaný pietě ostatků padlých vojáků uloženými do ossaria pod kaplí, uchovává vzpomínku na všechny padlé bez rozdílu národnosti. Na jejich památku se zde každoročně slouží mše v den výročí bitvy na slavkovském bojišti (2. prosince 1805). Památník byl vybudován podle návrhu architekta Josefa Fanty – „Mohyla míru: Nad smutnými poli na kříži Spasitel. V dolní části mohyly kostnice, nahoře kaple. Rozhled po bojišti z balkonu kaple a z plošin nad kaplí“

Muzeum Památníku Mohyly míru

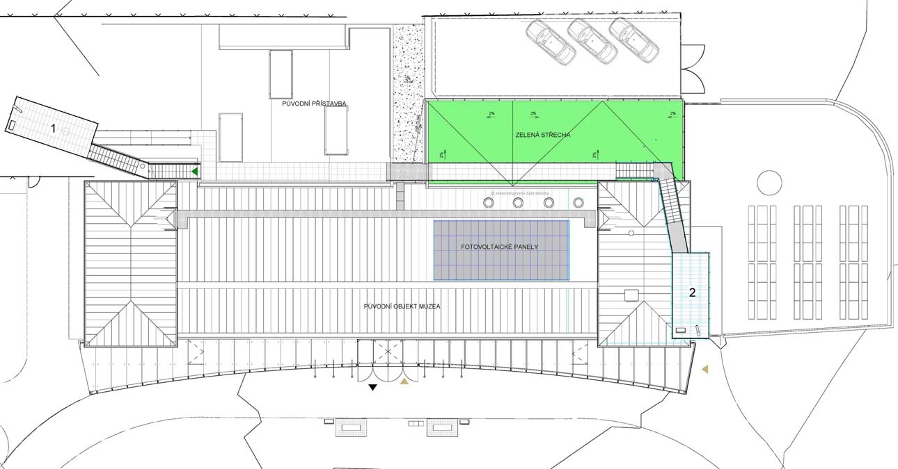
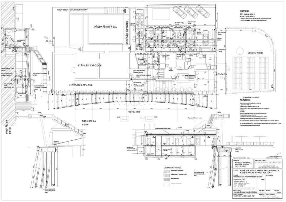
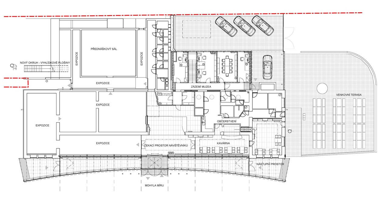
V roce 1925 začala fungovat budova muzea s muzejní expozicí, která má být soustavně doplňována nálezy z bojiště. Náš projekt a stavba Památníku Mohyla míru řeší jednak rekonstrukci návštěvnické infrastruktury, nedostatečné prostory kurátorů a zázemí muzea, ale hlavně příchod návštěvníků skleněným zádveřím, které zároveň tvoří v oblouku předsazenou skleněnou stěnou pozadí, v němž se Fantova Mohyla míru s kaplí zrcadlí. Nový návštěvnický okruh s plošinami - rozhlednami obhlížejícími bojiště z osmimetrové výše, z těchto plošin vedou kurátoři - průvodci výklad s podrobnostmi historie v souvislosti s bitvou tří císařů a jejich obětí. Současně s Památníkem Mohyly míru bylo rekonstruováno celé okolí, ovál cest a prvky zahradní architektury, nová dlažba před kaplí. Naší intervencí v muzejní části s plošinami rozhleden spolu s úpravou celého areálu slavkovského bojiště bychom rádi přispěli ke stému výročí předání Mohyly míru veřejnosti v roce 1923 a současně ji pojímáme jako živé memento válek kolem nás v 21. století. Ukazuje také, že je možné uvést současnou architekturu do historického, dokonce posvátného kontextu a možná by mohla pomoci zahájit nové dialogy ve snaze zachovat mír.