The museum of the cairn of peace memorial - architecture of memory and the austerlitz battlefield

Slavkov u Brna

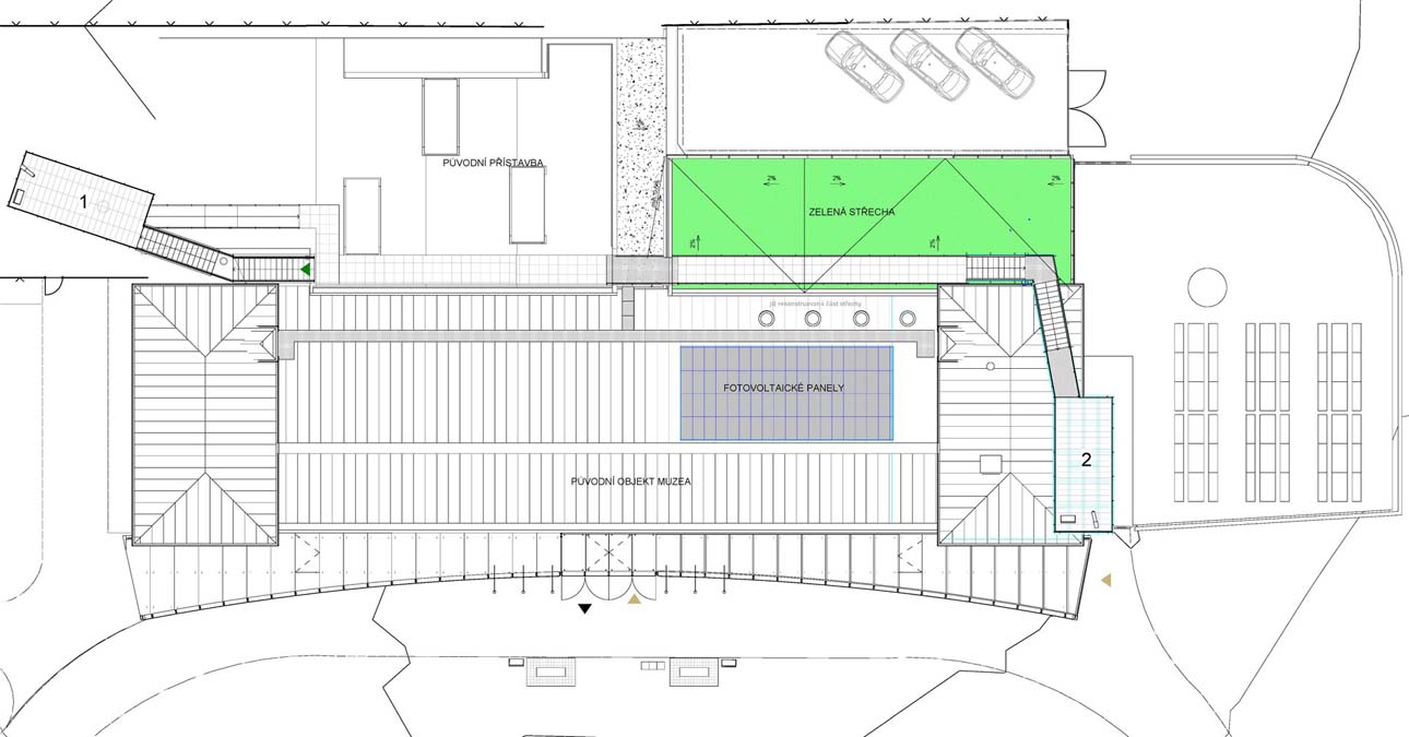
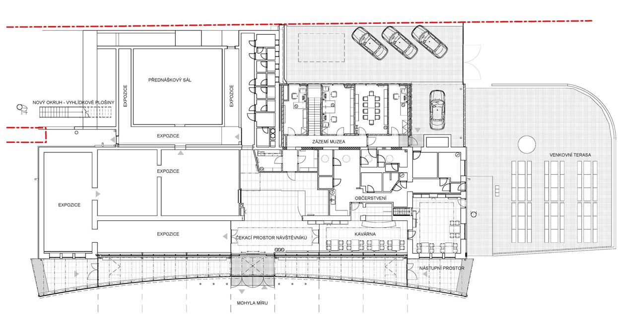
The main idea of the project was to commemorate the first Peace memorial in Europe, which was built out of piety for all fallen soldiers, regardless of nationality or religion. Our primary task was to unite historical and contemporary architecture in a historical and landscape context. The Cairn of Peace, designed in 1907 by architect Josef Fanta, is on the Central List of Cultural Monuments and is also located in the landscape conservation zone of the Austerlitz Battlefield. The principal aim was to sensitively connect the existing museum pavilion with the new infrastructure, i.e. with the museum's facilities – the curators' rooms and offices, depositories and visitors' cafe. The all-glass vestibule wall, that forms an arch in which the Cairn of Peace Memorial is mirrored, seemed ideal. We added two eight-metre high observation platforms – newly designed lookout towers, which Fanta's project originally envisaged, and from which it is possible to oversee the entire Austerlitz Battlefield. At present, the entire surroundings of the Cairn of Peace Memorial have been reconstructed with an oval pattern of paths as well as a new stone paving of the piazzetta in front of the Chapel. The whole area has been illuminated with pylon luminaires. We have also managed to restore the original beds of “Cotoneaster Dammeri” shrubs on the slopes of the chapel, which bear their fruits in the colour of a drop of blood on the anniversary of the battle.

With entire project we have aimed to contribute to the centenary of the completion of the Cairn of Peace Memorial Museum and present it as a living reminder of the cost of wars around us in this century. We believe that it is possible to place contemporary architecture in a historical, even sacred, context one that could perhaps help initiate new dialogues in the effort to preserve peace.